向原2丁目中古戸建の基本情報
- 物件名
- 向原2丁目中古戸建
- 価格
- -
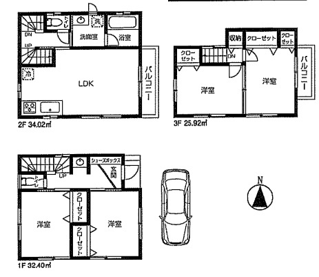
- 建物面積
- -
- 土地面積
- -(-)
- 築年月
- 2013年5月(築12年)
- 総戸数
- 1戸
向原2丁目中古戸建の詳細情報
- 設備条件
-
- 設備(その他)
-
-
-
- 土地権利
- 所有権
- 国土法届出
- 不要
- 用途地域
- 第一種中高層住居専用
- 取引態様
- 仲介
- 引渡し
- 2025年3月下旬
向原2丁目中古戸建のコメント(おすすめポイント)
中古マンション・一戸建て・土地等の東京都内売買物件情報をお客様のご希望が叶うよう、心を込めてご紹介しております。お客様のご希望に合った物件を細かい心遣いでお手伝いさせて頂きます。弊社HPには公開前の物件を多数掲載しておりますので、新鮮な情報をいち早く発信させて頂いております。お客様が納得なさるお住まいが見つかるよう、スピード感を持って全力でサポートします。売却査定・買い取りも致します。ご希望の際は、ケーコーポレーション売買事業部03-6865-1151迄お気軽にお問い合わせ下さい。お電話頂けると、お話が早く進みます。
周辺施設
-
幼稚園
むかいはら幼稚園
69m(1分)
-
高校
豊島高等学校
194m(3分)
-
公園
千川親水公園
585m(8分)
-
保育園
要町保育園
612m(8分)
-
スーパー
ライフ千川駅前店
614m(8分)
-
コンビニエンスストア
ミニストップ千早町4丁目店
649m(9分)
-
図書館
小茂根図書館
722m(10分)
近隣の物件
向原2丁目中古戸建







