この物件の募集は終了しました。
物件の特徴
-
バストイレ別
-
室内洗濯機置場
-
カウンターキッチン
-
独立洗面台
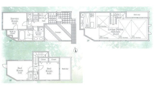
基本情報
- 物件名
- 西落合1丁目中古戸建
- 向き
- 南
- 種別/構造
- 中古一戸建/鉄筋コンクリート
- 築年月
- 2006年11月(築19年)
- 総戸数
- 1戸
設備条件
- 設備条件
-
- 閑静な住宅地
- 二世帯住宅
- 室内洗濯機置場
- バルコニー
- 都市ガス
- 公営水道
- 公共下水
- 電気有
- 2面バルコニー
- 3面バルコニー
- 両面バルコニー
- コンロ2口以上
- システムキッチン
- 対面式キッチン
- コンロ3口
- バス・トイレ別
- 独立洗面台
- ウォークインクロゼット
- 収納豊富
- 設備(その他)
-
-
-
- 販売戸数 / 総戸数
- 1戸 / 1戸
周辺施設
-
小学校
新宿区立落合第三小学校
159m(2分)
-
保育園
グローバルキッズ南長崎園
444m(6分)
-
幼稚園
南長崎幼稚園
587m(8分)
-
コンビニエンスストア
ローソンストア100南長崎3丁目店
604m(8分)
-
公園
南長崎花咲公園
618m(8分)
-
寺院・神社
誓願院
968m(13分)
-
総合病院
としま昭和病院
1086m(14分)
-
スーパー
西友 東長崎店
1209m(16分)
近隣の物件
よく見られている物件
西落合1丁目中古戸建







