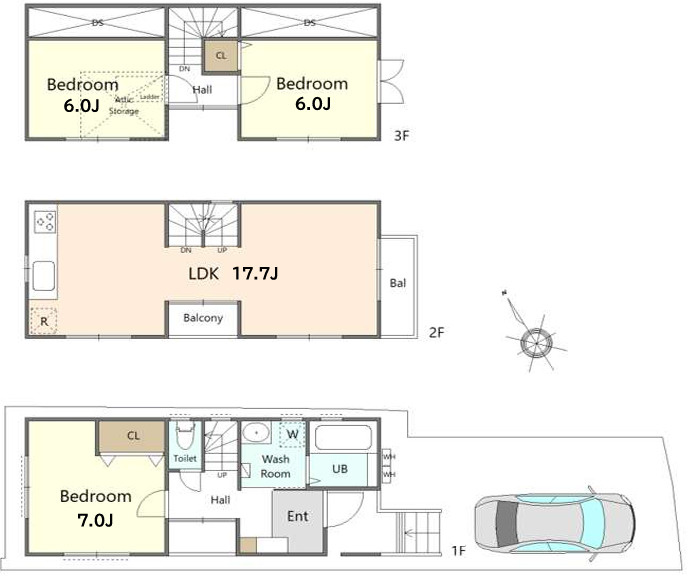
北区上中里3丁目中古戸建の基本情報
- 物件名
- 北区上中里3丁目中古戸建
- 価格
- -
- 建物面積
- -
- 土地面積
- -(-)
- 築年月
- 2004年12月(築21年)
- 総戸数
- -
北区上中里3丁目中古戸建の詳細情報
- 設備条件
-
- 閑静な住宅地
- 設備(その他)
-
-
-
- 土地権利
- 所有権
- 国土法届出
- 不要
- 用途地域
- 準工業
- 取引態様
- 仲介
- 引渡し
- 相談
北区上中里3丁目中古戸建のコメント(おすすめポイント)
周辺施設
-
小学校
北区立滝野川第五小学校
338m(5分)
-
高校
私立安部学院高等学校
466m(6分)
-
図書館
昭和図書館
527m(7分)
-
中学校
私立瀧野川女子学園中学校
677m(9分)
-
スーパー
株式会社東武ストア 西尾久店
873m(11分)
-
幼稚園
区立第二尾久幼稚園
891m(12分)
-
消防署
滝野川消防署
935m(12分)
-
保育園
私立子供の家愛保育園
942m(12分)
-
その他
滝野川区民事務所
1023m(13分)
-
警察
滝野川警察署
1025m(13分)
-
その他
都立旧古川庭園
1033m(13分)
-
その他
飛鳥山公園
1091m(14分)
-
その他
滝野川体育館
1105m(14分)
-
その他
北区防災センター(地震の科学館)
1108m(14分)
-
スポーツ施設
あらかわ遊園スポーツハウス
1140m(15分)
-
その他
しもふり銀座商店街
1367m(18分)
-
遊園地
あらかわ遊園
1416m(18分)
-
郵便局
王子本町郵便局
1427m(18分)
-
大学
女子栄養大学 短期大学部
1450m(19分)
-
市役所・区役所
北区役所
1536m(20分)
近隣の物件
北区上中里3丁目中古戸建







