JLBグランエクリュ白山の基本情報
- 物件名
- JLBグランエクリュ白山
- 価格
- -
- 建物面積
- -
- 築年月
- 2005年10月(築20年)
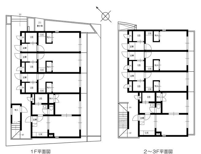
- 総戸数
- 6戸
JLBグランエクリュ白山の詳細情報
- 設備条件
-
- 設備(その他)
-
-
-
- 土地権利
- 所有権
- 国土法届出
- 不要
- 用途地域
- 近隣商業
- 戸数
- 6戸 / -
- 管理形態
- -
- 管理員の勤務形態
- -
- 管理会社
- -
- 取引態様
- 仲介
- 引渡し
- 相談
JLBグランエクリュ白山のコメント(おすすめポイント)
周辺施設
-
コンビニエンスストア
セブンイレブン文京白山駅前店
298m(4分)
-
スーパー
コープ白山店
358m(5分)
-
その他
ドラッグストアいわい白山店
374m(5分)
-
幼稚園
第一幼稚園
376m(5分)
-
保育園
向丘保育園
386m(5分)
-
大学
文京学院大学(本郷キャンパス)
521m(7分)
-
大学
東洋大学通信教育部
543m(7分)
-
公園
白山公園
567m(8分)
-
郵便局
文京向丘二郵便局
579m(8分)
-
総合病院
日本医科大学付属病院
663m(9分)
-
中学校
郁文館中学校
683m(9分)
-
高校
郁分館夢学園
717m(9分)
-
大学
日本医科大学
767m(10分)
-
図書館
東京大学農学生命科学図書館
1018m(13分)
-
総合病院
財団法人 慈愛病院
1027m(13分)
-
総合病院
東京都立駒込病院
1182m(15分)
-
その他
しおみ児童館
1245m(16分)
-
その他
善光寺坂 (小石川)
1385m(18分)
近隣の物件
よく見られている物件
JLBグランエクリュ白山







