北区神谷3丁目新築戸建の基本情報
- 物件名
- 北区神谷3丁目新築戸建
- 価格
- -
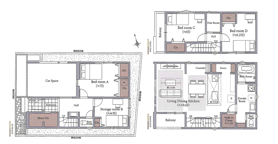
- 建物面積
- -
- 土地面積
- -(-)
- 築年月
- 2025年6月(新築)
- 総戸数
- 1戸
北区神谷3丁目新築戸建の詳細情報
- 設備条件
-
- 建設住宅性能評価書付
- 設備(その他)
-
-
-
- 土地権利
- 所有権
- 国土法届出
- 不要
- 用途地域
- 準工業
- 取引態様
- 仲介
- 引渡し
- 相談
北区神谷3丁目新築戸建のコメント(おすすめポイント)
お電話頂けると、お話が早く進みます。中古マンション・一戸建て・土地等の東京都内売買物件情報をお客様のご希望が叶うよう、心を込めてご紹介しております。お客様のご希望に合った物件探しを細かい心遣いでお手伝いさせて頂きます。HPには、公開前の物件を多数掲載しておりますので、新鮮な情報をいち早く発信させて頂いております。お客様が納得なさるお住まいが見つかるよう、スピード感を持って全力でサポートします。売却査定・買い取りも致します。ご希望の際は、ケーコーポレーション売買事業部03-6865-1151迄 お気軽にお問い合わせ下さい。
周辺施設
-
図書館
神谷図書館
146m(2分)
-
その他
神谷体育館
180m(3分)
-
その他
神谷分室
298m(4分)
-
警察
赤羽警察署
439m(6分)
-
その他
北区保健所
1156m(15分)
-
消防署
赤羽消防署
1234m(16分)
-
その他
赤羽区民事務所
1510m(19分)
-
郵便局
赤羽郵便局
1929m(25分)
近隣の物件
よく見られている物件
北区神谷3丁目新築戸建







