【外観】
- 物件名
- 日神パレステージ信濃町
- 価格
- 1億1,490万円
- 築年月
- 2000年8月(築25年)
- 総戸数
- 41戸
- 設備条件
-
- エレベーター
- 駐輪場
- バイク置場あり
- オートロック
- 宅配ボックス
- 防犯カメラ
- 24時間ゴミ出し可
- 設備(その他)
-
-
-
- 駐車場/月額
- 空有/38,000円 (税込)
- 土地権利
- 所有権
- 国土法届出
- 不要
- 用途地域
- 第二種中高層住居専用
- 戸数
- 41戸 / 1戸
- 管理形態
- 管理会社に全部委託
- 管理員の勤務形態
- 日勤
- 管理会社
- 新日本管財
- 取引態様
- 仲介
- 引渡し
- 即時
-
公園
もとまち公園
210m(3分)
-
総合病院
慶応義塾大学病院
531m(7分)
-
寺院・神社
須賀神社
586m(8分)
-
美術館
聖徳記念絵画館
752m(10分)
-
スーパー
丸正総本店(仮店舗)
765m(10分)
-
小学校
新宿区立四谷第六小学校
926m(12分)
-
その他
国立競技場
1046m(14分)
-
都道府県機関
四谷税務署
1074m(14分)
-
その他
明治神宮外苑
1263m(16分)
-
高校
雙葉高等学校
1455m(19分)
日神パレステージ信濃町の基本情報
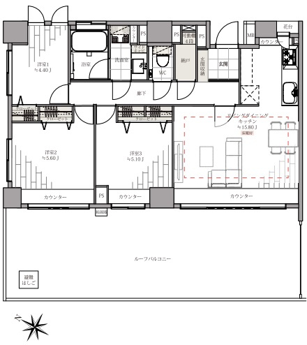
日神パレステージ信濃町の詳細情報
日神パレステージ信濃町のコメント(おすすめポイント)
中古マンション・一戸建て・土地等の東京都内売買物件情報をお客様のご希望が叶うよう、心を込めてご紹介しております。お客様のご希望に合った物件を細かい心遣いでお手伝いさせて頂きます。弊社HPには公開前の物件を多数掲載しておりますので、新鮮な情報をいち早く発信させて頂いております。お客様が納得なさるお住まいが見つかるよう、スピード感を持って全力でサポートします。売却査定・買い取りも致します。ご希望の際は、ケーコーポレーション売買事業部03-6865-1151迄お気軽にお問い合わせ下さい。お電話頂けると、お話が早く進みます。
日神パレステージ信濃町で募集中の物件
周辺施設
近隣の物件
日神パレステージ信濃町







