【外観】
- 専有面積
- 54.31㎡
- 築年月
- 2015年12月(築9年)
-
バストイレ別
-
室内洗濯機置場
-
TVモニタ付きインターホン
-
独立洗面台
-
オートロック
-
エレベーター
- 管理費
- 17,228円
- 修繕積立金
- 9,300円
- 修繕積立基金
- -
- 間取り / 詳細
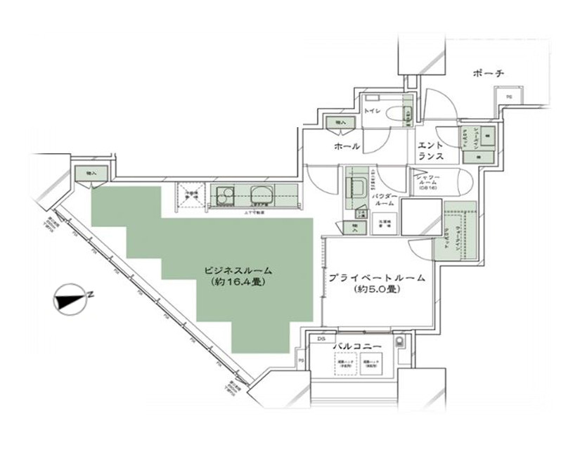
- 1LDK
LDK 16.4帖/洋室 5.0帖
WIC/SIC - 向き
- 東
- 専有面積
- 54.31㎡
- バルコニー面積
- 5.50㎡
- その他面積
- -
-
- - 所在階 / 階建て
- 50階 / 52階建 地下1階
- 建物構造
- 鉄筋コンクリート(一部鉄骨造)
- 築年月
- 2015年12月(築9年)
- 種別
- 中古マンション
- 駐車場 /
月額料金 - 空無 27,000円~42,000円/月
- 土地権利
- 所有権
- 土地
(敷金 / 保証金) - - / -
- 国土法届出要否
- 不要
- 接道状況
- -
- 用途地域
- 準工業
- 地勢
- -
- 都市計画
- 市街化区域
- 現況
- 空家
- 引渡し
- 相談
- 取引態様
- 仲介
- 棟総戸数
- 1450戸
- 管理形態
- 管理会社に全部委託
- 管理会社 /
管理組合有無 - 住友不動産建物サービス / 有
- その他条件
- 外部居住者協力金月:2,500円
- 取引条件の
有効期限 - 2025年11月24日
- 設備条件
-
- ペット相談 / ペット飼育可 / 陽当り良好 / 事務所可 / キッズルーム / 眺望良好 / 室内洗濯機置場 / バルコニー / 都市ガス / 公営水道 / 公共下水 / エレベーター / 電気有 / 駐輪場 / バイク置場あり / 免震構造 / システムキッチン / オープンキッチン / バス・トイレ別 / 独立洗面台 / ウォークインクロゼット / 収納豊富 / オートロック / TVモニタ付インターホン / 宅配ボックス / 24時間有人管理 / 24時間ゴミ出し可 / コンシェルジュサービス / 角部屋
- 設備(その他)
-
-
-
- 物件番号
- 98820938
- 管理コード
- -
- 建築確認番号
- -
- 情報更新日
- 2025年11月10日
- 次回更新予定日
- 2025年11月24日
- 備考
- 【オンライン内見対応可】 〇勝どき駅徒歩5分!住友不動産(株)旧分譲、三井不動産(株)施工 ホテルライクなグランドロビー・内廊下設計、フロントコンシェルジュあり
〇事務所としても住居としても利用できます!
お電話頂けると、お話が早く進みます。お客様のご希望に合ったお部屋探しを細かい心遣いでお手伝いさせて頂きます。HPには公開前の物件を多数掲載しておりますので、新鮮な情報をいち早く発信させて頂いております。お客様が納得なさるお住まいが見つかるよう、スピード感を持って全力でサポートします。売却査定・買い取りも致します。ご希望の際は、お気軽にお問い合わせ下さい。 -
保育園
アスク晴海3丁目保育園
406m(6分)
-
アウトレット
晴海アイランドトリトンスクエア
762m(10分)
-
幼稚園
豊海幼稚園
769m(10分)
-
警察
月島警察署
952m(12分)
-
市役所・区役所
中央区役所 月島出張所
1146m(15分)
-
図書館
月島図書館
1208m(16分)
-
消防署
臨港消防署
1223m(16分)
-
大学
首都大学東京 晴海キャンパス
1239m(16分)
-
その他
築地市場
1501m(19分)
-
寺院・神社
築地本願寺
1763m(23分)
-
その他
アーバンドックららぽーと豊洲
1936m(25分)
-
その他
キッザニア東京
1936m(25分)
-
総合病院
聖路加国際病院
1961m(25分)
-
その他
国立がん研究センター
1964m(25分)
- 月々の支払額
- 9.6円
- 購入希望物件価格
-
万円
- 頭金
-
万円
- 金利
-
%
- 返済額(ボーナス1回分)
-
万円
- 返済期間
-
年
物件の特徴
セールスポイント
免震構造の大規模ツインタワーマンション 充実の共用施設!SOHO事務所利用可 ペットと暮らせます♪ 【オンライン内見対応可】
ポイント
ペット可 事務所利用可 SOHO 勝どき駅 免震構造 タワーマンション 住友不動産(株)旧分譲 三井不動産(株)施工 グランドロビー 24時間有人管理 二重床 二重天井 フロントコンシェルジュ ビューラウンジ 居住者専用シャトルバス 各階ゴミ置場 豊海西小学校 マルエツ オンライン内見対応可
担当者のコメント
基本情報
設備条件
その他
周辺施設
支払いシミュレーション
※ボーナスは自動で年2回分で計算されます。
近隣の物件
DEUX TOURS EAST
1億5,700万円
17,228円
1LDK(54.31㎡)








お電話頂けると、お話が早く進みます。中古マンション・一戸建て・土地等の東京都内売買物件情報をお客様のご希望が叶うよう、心を込めてご紹介しております。お客様のご希望に合った物件探しを細かい心遣いでお手伝いさせて頂きます。HPには、公開前の物件を多数掲載しておりますので、新鮮な情報をいち早く発信させて頂いております。お客様が納得なさるお住まいが見つかるよう、スピード感を持って全力でサポートします。売却査定・買い取りも致します。ご希望の際は、ケーコーポレーション売買事業部03-6865-1151迄 お気軽にお問い合わせ下さい。