【外観】
- 物件名
- ブリリアタワー東京
- 価格
- 1億998万円
- 築年月
- 2006年2月(築19年)
- 総戸数
- 644戸
- 設備条件
-
- 高層ビル
- エレベーター
- 駐輪場
- バイク置場あり
- オートロック
- 宅配ボックス
- 24時間緊急通報システム
- 防犯カメラ
- 24時間ゴミ出し可
- コンシェルジュサービス
- 設備(その他)
-
-
-
- 駐車場/月額
- 空有/37,000円
- 土地権利
- 所有権
- 国土法届出
- 不要
- 用途地域
- 商業
- 戸数
- 644戸 / 1戸
- 管理形態
- 管理会社に全部委託
- 管理員の勤務形態
- 日勤
- 管理会社
- 長谷工コミュニティ
- 取引態様
- 仲介
- 引渡し
- 相談
-
郵便局
本所郵便局
461m(6分)
-
小学校
墨田区立錦糸小学校
542m(7分)
-
寺院・神社
亀戸天神社
709m(9分)
-
小学校
江東区立第一亀戸小学校
876m(11分)
-
幼稚園
第一亀戸幼稚園
876m(11分)
-
公園
猿江恩賜公園
952m(12分)
-
中学校
江東区立第三亀戸中学校
956m(12分)
-
中学校
墨田区立錦糸中学校
1007m(13分)
-
その他
東京スカイツリー
1502m(19分)
-
デパート
東京そらまち
1583m(20分)
-
総合病院
社会福祉法人あそか会 あそか病院
1585m(20分)
ブリリアタワー東京の基本情報
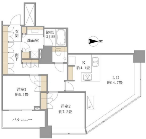
ブリリアタワー東京の詳細情報
ブリリアタワー東京のコメント(おすすめポイント)
中古マンション・一戸建て・土地等の東京都内売買物件情報をお客様のご希望が叶うよう、心を込めてご紹介しております。お客様のご希望に合った物件を細かい心遣いでお手伝いさせて頂きます。弊社HPには公開前の物件を多数掲載しておりますので、新鮮な情報をいち早く発信させて頂いております。お客様が納得なさるお住まいが見つかるよう、スピード感を持って全力でサポートします。売却査定・買い取りも致します。ご希望の際は、ケーコーポレーション売買事業部03-6865-1151迄お気軽にお問い合わせ下さい。お電話頂けると、お話が早く進みます。
ブリリアタワー東京で募集中の物件
周辺施設
近隣の物件
ブリリアタワー東京







