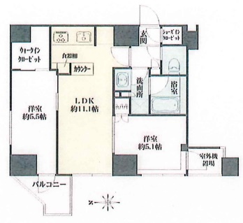
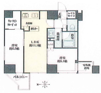
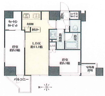
プライムアーバン西日暮里フロントの基本情報
- 物件名
- プライムアーバン西日暮里フロント
- 価格
- 12.8万円~23.3万円
- 管理/共益費
- 15,000円~20,000円
- 築年月
- 2023年6月(築2年)
- 総戸数
- -
プライムアーバン西日暮里フロントの詳細情報
- 設備条件
-
- エレベーター
- 駐輪場
- インターネット対応
- オートロック
- 宅配ボックス
- 防犯カメラ
- 設備(その他)
-
-
-
- 駐車場/月額
- 無/-
- 用途地域
- -
- 戸数
- - / -
- 取引態様
- 仲介
プライムアーバン西日暮里フロントのコメント(おすすめポイント)
オートロック・宅配BOX完備!ペットと一緒に暮らせます♪
こちらの物件をご希望の方は 0120-17-1834 迄お気軽にお問い合わせ下さい。お電話頂けると、お話が早く進みます。
こちらの物件をご希望の方は 0120-17-1834 迄お気軽にお問い合わせ下さい。お電話頂けると、お話が早く進みます。
プライムアーバン西日暮里フロントで募集中の物件
周辺施設
-
郵便局
文京千駄木四郵便局
1250m(16分)
近隣の物件
プライムアーバン西日暮里フロント







